MagamrólMotorozásLézertechnikaE-mail



20-40mW 532nm DPSS lézer építése


DPSS DPSS

A lézer, amelyet össze lehet állítani az építőcsomagból, a 3B lézer-biztonsági osztályba tartozik, azaz a lézerbe való belenézés szemsérülést, maradandó szemkárosodást, extrém esetben megvakulást okozhat!

Ezért az alábbi szabályok minden körülmények között betartandók:

  • A lézercsóvába belenézni szigorúan tilos!
  • A lézer beállítását, javítását, kellő körültekintéssel végezzük!
  • A nem működő lézerbe SOHA ne nézzünk bele, még akkor se, ha nem világít!
  • A leírás készítője semmilyen felelősséget nem vállal az esetleges károk és sérülések következtében!
  • Az építéshez szükséges eszközök:

  • 1 db 300mW-os 808nm-es pumpáló lézerdióda (Samberti Laser Ltd.)
  • 1 db YVO4-KTP Hibrid kristály, rézgyűrűbe ragasztva (Samberti Laser Ltd.)
  • 1 db infra fókuszáló lencse
  • 1 db kollimáló 1 lencse GLC1035
  • 1 db kollimáló 2 lencse GLA1700

  • némi sárgaréz henger darabok
  • eszterga pad
  • 5 vagy 10 perces kétkomponensű epoxy
  • Mielőtt hozzá kezdenél az építéshez, figyelmesen olvassd át többször a leírást, gondolj végig minden lépést, gondold el, mit hogyan készítenél el. Tudom nem könnyű türtőztetni a barkácsoló hajlamot, és hipp hopp neki ugrani. Figyelmesen olvasd el a leírás minden részletét, hiszen minden egyes rész fontos ahhoz, hogy a végén egy jól működő tökéletes lézert kapjunk! Az összes rajzot tanulmányozd át alaposan, ne hozz elhamarkodott döntéseket, a jó lézer titka a nyugalom, és az alapos munka!

    A lézer működéséről néhány szóban:

    A lézer alapja egy 300mW-os 808nm hullámhosszon működő infra lézer, mely nem látható tartományban üzemel, ezért is veszélyes. Ez az infra fény gerjeszti, "pumpálja" a lézer kristályt, ami egy hibrid kristály. A kristály egyik felén egy YVO4 kristály helyezkedik el, ami a gerjesztés hatására a 808nm-ből 1064 nm-es infra fényt állít elő, majd ezt követi a KTP kristály, ami az 1064nm-t felezi, és elő állítódik az 532nm-es látható tartományú hullámhossz, ami a zöld fényt jelenti a számunkra. Még visszatérve a 808 nm-es infra fényhez, ennél a lézernél ezt a nyalábot fókuszáljuk az YVO4 kristály közepébe, hogy nagyobb teljesítményt és jobb hatásfokot érjünk el. A kristály jelen esetben egy 1x1x2,5 mm-es hibrid kristály, ami optikailag epoxymentes illesztéssel készült, így akár 500mW pumpálást is kibírna, tehát az élettartamtól nem kell tartani, a mindenféle leírásokkal ellentétben ez az eszköz egy igen jó minőségű és megfelelő teljesítményű kristály.

    DPSS

    A lézert rétegesen érdemes összerakni. Fontos az egytengelyűség, bár ez a kristály annyira nem érzékeny a párhuzamosságra, mégis jó, ha minden alkatrész egy tengelyen, egy vonalban van.

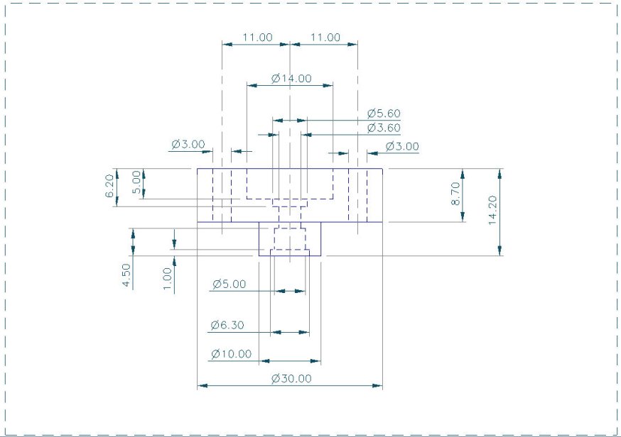
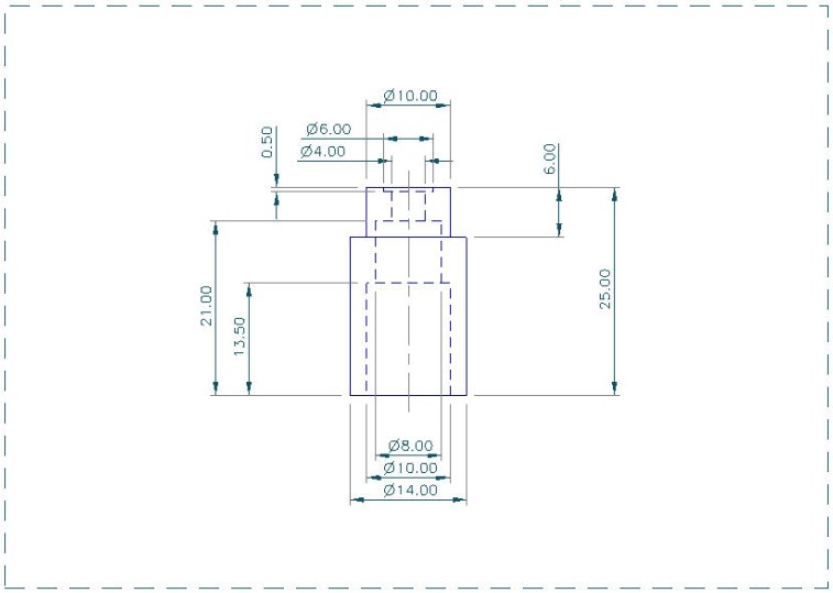
    Először a diódát kell befogni egy sárgaréz tömbbe. Fontos, hogy a dióda megfelelően érintkezzen a réz tömb felületéhez, szükség esetén használjunk hővezető pasztát! A paszta kenésével vigyázzunk, hogy véletlenül se kenjük össze a dióda kilépő ablakát, mert azt megtakarítani már igen csak nehézkes. A befogó javasolt méretei, és műszaki rajza az alábbi rajzon található. Miután a diódát behelyeztük, rögzíteni is kell azt! FONTOS hogy a ragasztáshoz csakis és kizárólag, epoxy gyantát használjunk! Semmi esetre se használjunk pillanat ragasztót és más egyéb ragasztó anyagokat! Az áram bevezető vékony kis kábeleknek fúrjunk a henger palástján 2 x 1,5 mm átmérőjű lyukat is!

    DPSS DPSS

    Miután a diódát beragasztottuk a helyére, a másik oldalról ragasszuk be a fókusz lencsét is! Vigyázzunk hogy ne tapogassuk össze a lencse felületét, ha mégis sikerült ablaktisztítóval és fülpiszkálóval meg lehet pucolni. Ha a lézer e része elkészült, akkor várjuk meg, míg megszárad rendesen a ragasztó. Nem árt, ha valami jó minőségű 5 vagy 10 perces kétkomponensű epoxy-t használunk, mert azzal könnyen és gyorsan tudunk dolgozni.

    Ha elkészült az első tag, akkor a lézert bekapcsolva, meg győződhetünk az infra sugár fókusz pontjáról. Egy papírlapon jól látható az emittáló réteg fluoreszenciája, egy pici piros folt, ez valójában nem az infra sugár mivel azt nem látjuk, de nagyjából helyes képet ad az infra sugár fókusz pontjáról is. Fontos, hogy jól kimérje a fókusz pontot, mert abba pontba kell helyezni az YVO4 kristályt. A fókusz pont gyakorlatilag egy lenyújtott ellipszoid és ezen belül kell megtalálni azt a síkot, ahol a legintenzívebb a folt.

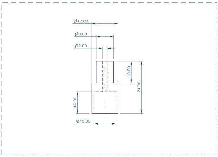
    A kristály a ”zöld” felével kell, hogy nézzen a dióda felé. Az összeállítási rajzon szemléltetve is van, hogy a foglalat lapos felével néz a dióda felé. Mivel az YVO4 1mm vastag ezért fontos a helyes beállítás, ha túlfut a kristályon az infra fókusza, akkor már a KTP kristályt melegíti vele, annak meg semmi értelme. A befogott kristályok tologatásával kell beállítani a távolságot, míg a kellő erősségű zöld fényt nem kapjuk. A kristály befogó és az első kollimáló lencse javasolt szerkezeti tartójának műszaki rajzát az alábbi képen tekinthetjük meg.

    DPSS DPSS

    Ha a második tag is elkészült, akkor lehet próbálgatni a két tagot összeilleszteni, bekapcsolt dióda mellett! FONTOS, hogy soha de soha ne nézzünk bele a készülő lézerbe, még akkor sem, ha nem jön ki zöld fény! Bekapcsolt dióda mellett nagyjából 250mA meghajtással, már ki kell tudjon jönni a zöld fény. Húzzuk rá a kristályos tagot a dióda alapra, és óvatosan mozgassuk, billegtessük, tologassuk a kristály befogót, míg meg nem jelenik a fény! Amikor megjelent a fény, vegyük lejjebb a meghajtó áramot, és próbáljunk megint erősebb fényt kicsikarni. Ezzel a jusztálással, ha türelmesek vagyunk, nagyon jól be lehet állítani a lézert! Nagyon fontos, hogy a próbálgatás közben még csak véletlenül se menjünk fel a dióda áram és feszültség határértékei fölé! Vigyázat! Itt még nem lesz pontszerű és nagyon éles a fénypont! Inkább egy nagyobbacska gyengébb folt lesz úgy 1-2 méteres távolságban. Elképzelhető, hogy lesz ezen kívül még két mellék nyaláb is, ezektől nem kell megijedni, majd a következő elem kitakarja. Addig állítsuk, míg egy szép kerek foltot nem kapunk a közepén.

    Ha ezzel készen vagyunk a első és a második tagot rögzítsük egy kis epoxyval! Közben járassuk a lézert, és figyeljük, hogy nem állítódik el a ragasztó száradása közben!

    Amíg nem köt meg a ragasztó teljesen, addig állítsunk utána, hogyha nagyon elállítódik a lézerünk! Ebben az állapotban várjuk meg a ragasztó teljes megszáradását! A hűtés elméletileg elegendő a lézernek azzal a sárgaréz befogó pogácsával, de a beállítás közben és a ragasztgatás közben inkább szakaszosan üzemeltessük!

    Ha kész van a lézer e része, akkor jöhet a nyalábrendezés. A legutolsó kollimáló lencsével lehet beállítani a nyaláb párhuzamosságát. Ehhez is alább lehet megtalálni egy javasolt rajzot, a lényeg hogy a távolsággal kell addig játszani, míg a lézer sugarunk kb. 5 méteres távolságban el nem éri a legjobb párhuzamosságot, azaz a fénypont a legkisebb nem lesz.

    DPSS DPSS

    Miután a második kollimáló részt is beállítottuk azt is rögzítsük epoxyval! Ha készen van a lézer test akkor jöhet a megfelelő hűtés kialakítása. A dióda befogó talpát kenjük be jó vastagon hővezető pasztával, majd csavarozzuk egy hűtőbordára. Egy 50x40x20 mm-es hűtőborda, ami a képen is látható bőven megfelel a hűtésnek!

    DPSS DPSS DPSS DPSS
    DPSS DPSS DPSS DPSS

    A következő képek sorrendben, legkissebb teljesítmény, közepes teljesítmény, full power, majd egy 100mW os modul mellet szemből fényképezve!

    DPSS DPSS DPSS DPSS

    Pár fontos jó tanács az összeállításhoz:

    A ragasztás során ügylejünk arra, hogy csak a lencsék szélét kenjük össze ragasztóval, véletlenül se kenjünk rá semmilyen optikai felületre ragasztót, mert leszedni már elég macerás!

    A ragasztás során elég pár pötty kis ragasztó, nem kell mindent jó alaposan összeragasztózni, az esetleges hibás összerakás utáni szétszedést nagyban megkönnyíti!

    Az összeállítás során figyeljünk a tisztaságra és pormentes környezetre, amennyire csak lehet!

    A lézert valami kisebb szabályozható tápegységről próbáljuk ki első körben, mégpedig úgy hogy sorba kötünk a lézerrel egy 10 Ohm-os 2W-os ellenállást! A feszültséget a dióda két pólusa között mérjük, ami SOHA NEM HALADHATJA MEG, A 2V-ot!! Az áram maximálisan 350mA lehet! Tesztelés során inkább a 300mA legyen a maximum és az 1,9V- az a biztos!

    Vigyázzunk a diódára, mert nagyon könnyen tönkre lehet tenni! NE kapcsoljuk rá egyből az 1,9V-ot, hanem szépen finoman adjuk neki a feszültséget, míg el nem éri a kellő áramfelvételt!

    Vigyázzunk, mert a dióda 70mA felett ugrásszerűen kezdi felvenni az áramot, mivel 70mAnél van a nyitófeszültség könyöke, és onnan rohamosan nő a feszültség hatására az áramfelvétel.

    Ha elkészültünk az összeállítással, jöhet a tesztelés!

    Javasolt meghajtó elektronika:

    DPSS

    A kapcsolás beállítása:

    Az egész kapcsolással sorba kötünk, egy árammérőt 10A-es méréshatárban, fontos, hogy a műszer belső ellenállása elhanyagolhatóan kicsi legyen! Mind a két potenciométert letekerjük 0 állásba, rákötjük a lézer fejet, majd az 5V tápfeszültséget. Miután mindent ellenőriztünk, bekapcsoljuk az 5V tápfeszültséget. A ”Moduláció küszöb” potenciométerrel be állítjuk az alsó küszöb áramot, mégpedig azt ahol éppen elkezd világítani a lézerünk. Miután ez megvan adunk az áramkörre 5V modulációt, és a moduláció potenciométerrel beállítjuk a maximális áramot. A maximális áram ott van ahol már a lézer látható fénye nem erősödik, no ekkor egy kicsit vissza tekerjük az áramot, mégpedig úgy, hogy egy picit csökkenjen a teljesítmény, ugyanis amikor kivesszük a műszert a körből akkor az azon eső minimális feszültség a diódára és az ellenállásra jut, így elérjük a kívánt áramot! Fontos, hogy a beállítás alatt soha ne menjünk 340mA fölé, bár elméletileg, és gyakorlatilag is a javasolt kapcsolással ez szinte lehetetlen, ha 5V a tápfeszültség!

    Összességében nagyon egyszerűen, nagyon jó kis lézert lehet építeni viszonylag kevés pénzből! Ha bárkinek gondja akad az alkatrészek beszerzésével, szívesen segítek!

    Az infra dióda adatlapja itt található, a hibrid kristályé pedig itt!


    előző

    vissza

    következő



    Google PageRank